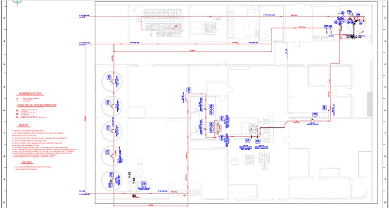
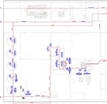
Soluciones integrales en ingeniería: calidad y reducción de costos garantizadas
En pidme, ofrecemos ingeniería de alta calidad apoyada en la experiencia de nuestros especialistas. Nuestra capacitación constante y cumplimiento de normas internacionales garantizan soluciones efectivas, alineadas con las expectativas de nuestros clientes, para maximizar su inversión y optimizar cada proyecto al más alto estándar de calidad.
5/8/20241 min read


Ingeniería, calidad, soluciones.

